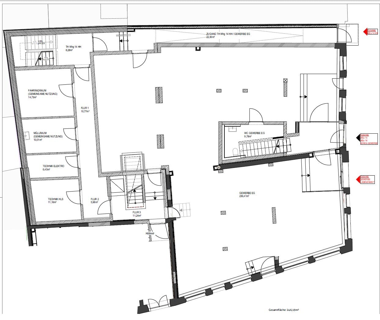
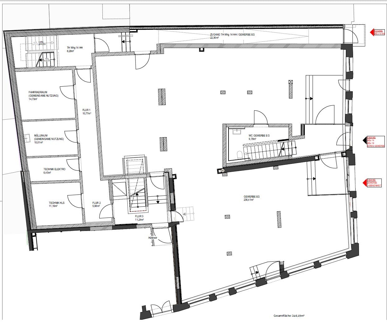
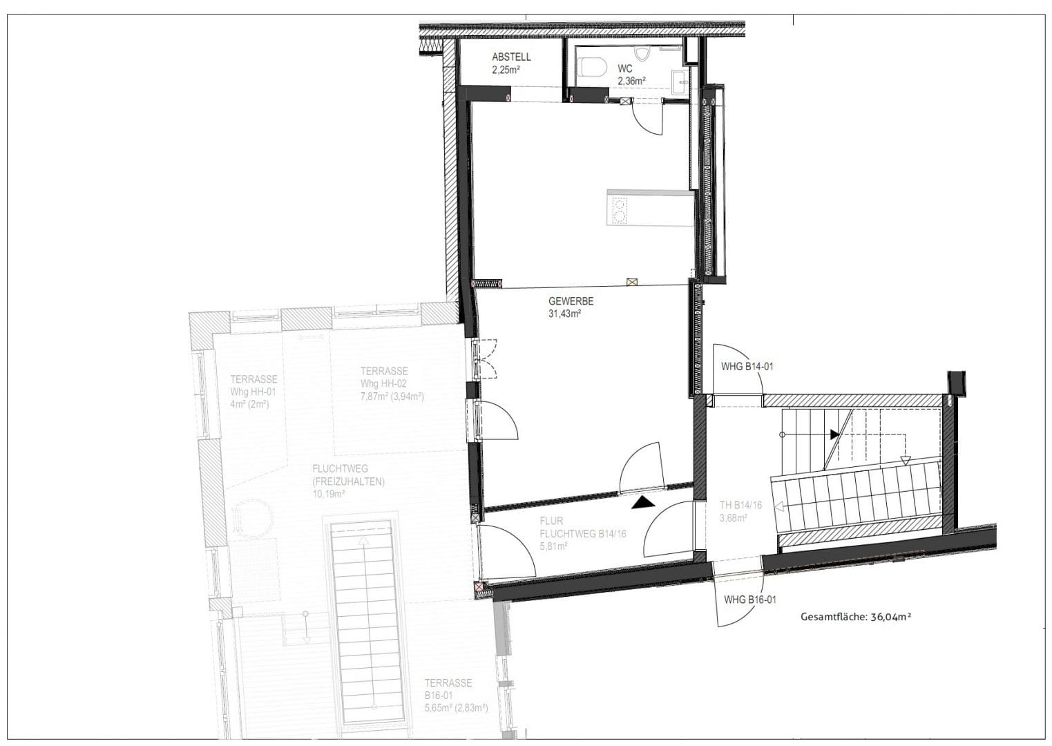
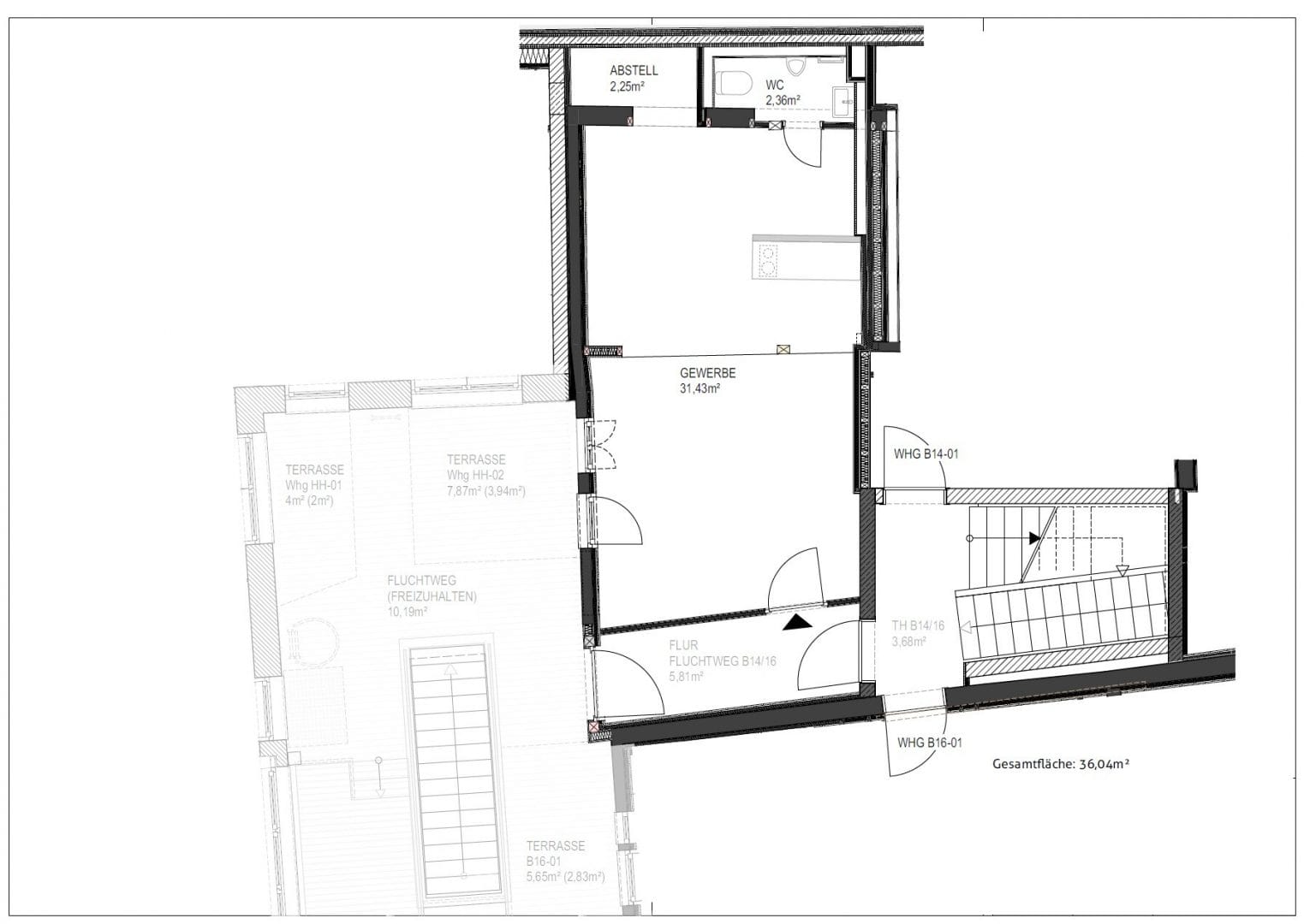
In der Konstanzer Altstadt am Bodanplatz befinden sich im Erdgeschoss eine hochwertige Gewerbefläche mit insgesamt 282,23 m². Die Fläche ist teilbar. Büroraum, Pausenraum/Teeküche und WC sind im 1. OG vorhanden. Die Räume wurden im Rahmen einer Generalsanierung von zwei denkmalgeschützten Gebäuden neu geschaffen. Die Raumhöhe wurde durch eine Tieferlegung des Bodens erhöht. Im Eingangsbereich sind Teile der alten Gebäudesubstanz erkennbar. In Abstimmung mit dem Denkmalamt konnten große Schaufenster angebracht werden.
Teile des Gebäudes stammen aus dem Mittelalter und haben dadurch einen besonderen Raumcharakter. Die Räume wurden mit Estrich, Verputz der Wände und Rigipsplatten an der Decke ausgebaut. Die Gewerberäume können ab sofort nach den Wünschen und Anforderungen des künftigen Nutzers ausgebaut und dann genutzt werden. Maklergebühren oder Provisionen fallen keine an.
Die Lage ist hervorragend: In 100 m Entfernung und Sichtnähe befindet sich das überregional bekannte Einkaufszentrum LAGO. Dort befindet sich ein öffentliches Parkhaus mit 700 Parkplätzen. Die Räume liegen an der Fußgängerzone und sind mit öffentlichen Verkehrsmitteln sehr gut erreichbar. Der Hauptbahnhof ist zu Fuß 5 Minuten entfernt. Besonders hervorzuheben ist die grenznahe Lage zur Schweiz. So können potentielle Schweizer Kunden angesprochen werden.





























