Es gibt sie noch: gute Gelegenheiten! In einem denkmalgeschützten Gebäude aus dem 17. Jahrhundert wurde zwischen 2011 und 2012 hochwertig renoviert und modern ausgestattet. Die Flächen eignen sich ideal für eine gewerbliche Nutzung, und mit einer Bauvoranfrage zur Umnutzung lässt sich hier künftig auch Wohnen realisieren.
Lage: Zentral auf der Insel Reichenau, ca. 800 m vom See entfernt, in unmittelbarer Nähe zum Museum und Kloster.
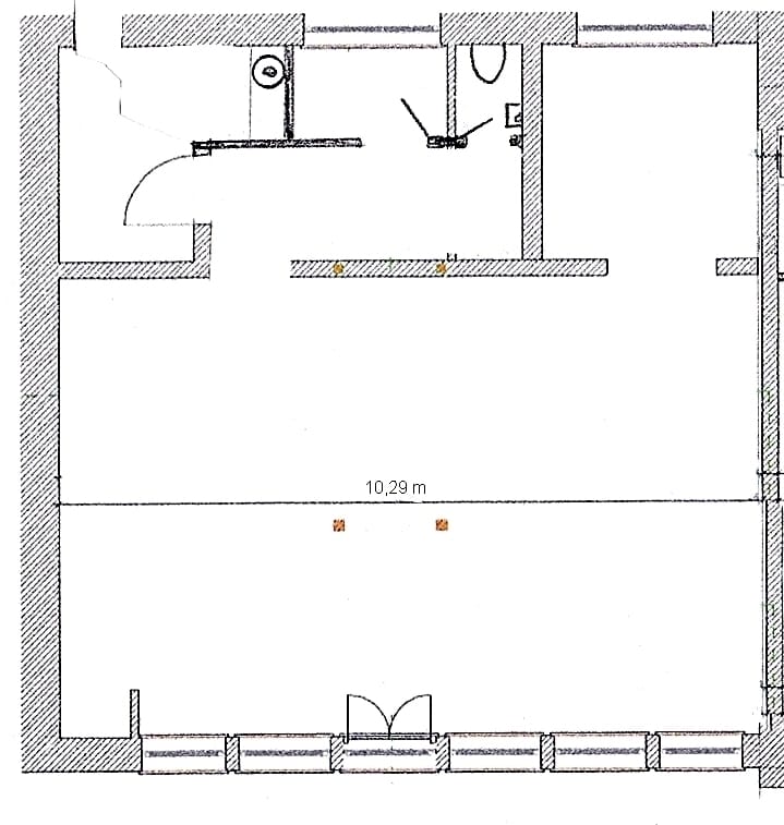
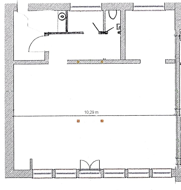
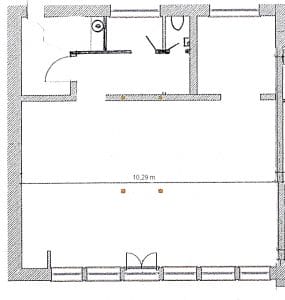
Räume: Erdgeschossflächen ca. 100 m² Gesamtgröße. Große Fensterfronten mit dreifach isolierter Verglasung sowie hochwertige Ausstattung schaffen eine elegante Atmosphäre.
Technik und Versorgung: Gas-Brennwerttherme mit Solarthermie sorgt für unabhängige Heiz- und Warmwasserversorgung vor Ort. Separate Wärmetauscher gewährleisten heißes Brauchwasser. Zusätzlich verfügt die Immobilie über eine Grander-Wasseraufbereitung.
Nutzungsmöglichkeiten: Die Räume eignen sich sowohl für Wohnen als auch für flexible Nutzungen wie Wohn- und Arbeitsbereiche, repräsentative Büroräume oder kleine Praxis- bzw. Studioformen. Mit der Umnutzung (Bauvoranfrage) können Sie das Konzept entsprechend Ihren Bedürfnissen gestalten.
Ausstattung: Hochwertige, geschmackvolle Materialien und eine außergewöhnliche, multifunktionale Gestaltung.
Nächste Schritte: Vereinbaren Sie gerne einen persönlichen Besichtigungstermin und sprechen Sie mit uns über Ihre Pläne zur Umnutzung und Realisierung Ihres Wohn- bzw. Wohn- und Arbeitskonzepts in historischen Mauern.
Kauf

Offene Besichtigung: Viel Platz für Familien am 14. August, 17–19 Uhr
Konstanz
Kaufpreis 1.285.000,00 €










